
New HQ building for the Polk County North Carolina Democratic Party, to be located on a prominent site facing the Civic Center square in downtown Columbus, NC, the county seat. The organization needs a new up-to-date facility to replace the run-down existing building located on the same site.
The intention of the design is to communicate inclusiveness, progressivism, and transparency by opening up the building’s volume toward the public square and providing a balcony/mezzanine overlooking the assembly space on the inside and the Civic Center with the mountains beyond on the outside. Daylight floods the interior through the 2-story glass front facade, large side windows, and skylights above. For economy, a pre-engineered metal building system is employed for the building shell. The facility will be powered by an array of solar panels located on the south-facing roof.
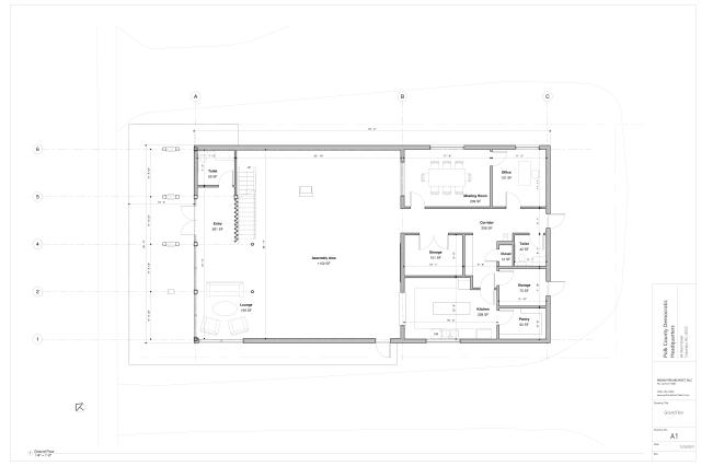
Program: Multipurpose/events space, prep kitchen, work room, office, storage and other support spaces.
DP’s ROLE: Full architectural services
LOCATION: Columbus, NC
BUILDING STATUS: Construction anticipated for 2022-23
ARCHITECT OF RECORD: PerlmutterArchitect PLLC
Revit images by Jared Melaragno, AI













