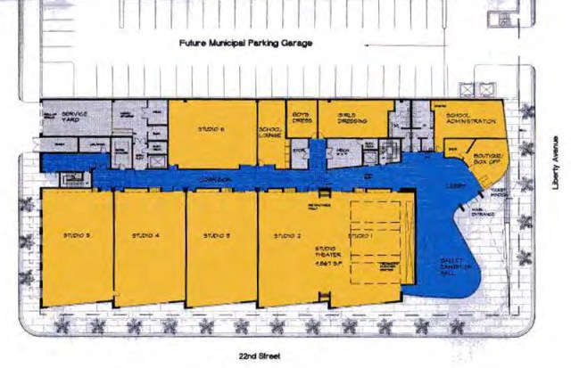
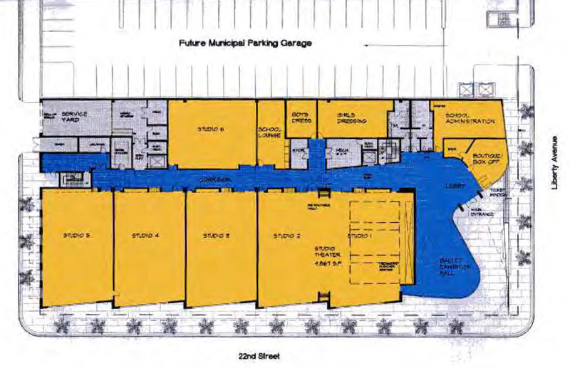
60,000 sf administrative/rehearsal/production/education facility including 8 dance studios, public lobby with retail, administration, ballet school, costume shop, set construction shop. Owner wanted high visibility and iconic image for building, plus visibility for public into studios from street.
DP’s ROLE: Designer, Project Management
LOCATION: Miami Beach, FL
BUILDING STATUS: Built
ARCHITECT OF RECORD: Arquitectonica










