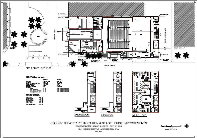
Complete renovation/restoration of historic theater in the landmark Art Deco District of Miami Beach. New Broadway-class stage house addition, with dressing rooms and stage shops. Restoration of house with new seating, lighting, audio, and replications of historic grillework and decor. Restoration of original lobby and box office.
DP’s ROLE: Project Manager, Construction Administration
LOCATION: Miami Beach, FL
BUILDING STATUS: Built
ARCHITECT OF RECORD: RJ Heisenbottle Architects


